광교 25평 영어 수학 학원인테리어
25평 수학학원 인테리어 업체
안녕하세요. 큐브디자인 입니다.
오늘은 수원 광교에 위치한 25평 영어 수학 학원인테리어 교습소 공사가 완료되었습니다.
저렴하면서 간단한 인테리어 공사를 문의주셔서 1주일내 깔끔하게 마무리 되었습니다.
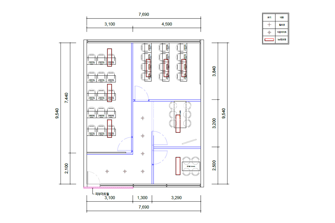
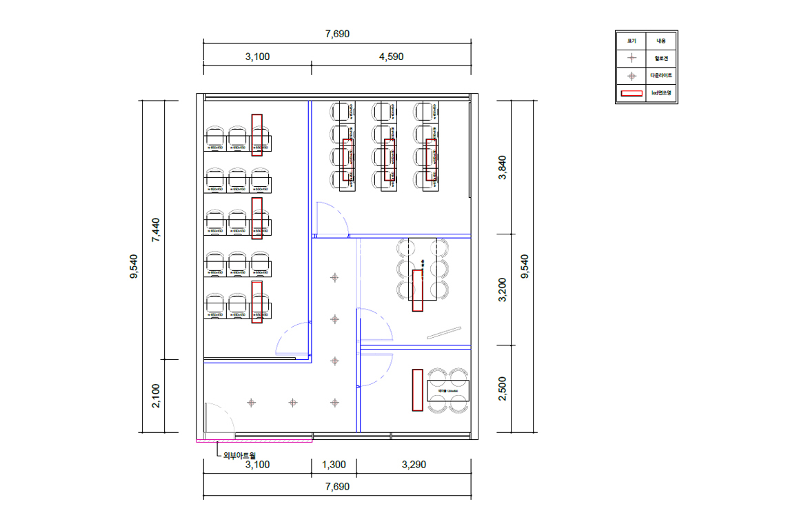
수원 학원인테리어 공사완료 사진

입구 외부아트월 모습입니다.
웨인스코팅몰딩으로 포인트를 주어서
빠르고 가격도 저렴하게 완성되었어요.

내부 수학 학원 교습소모습입니다.
총 4개 호실로 구성되었습니다.

입구에는 원장님이 간단하게 로고를 붙여주셨어요.






인테리어 공사의 기본적으로 도면과 단면도 및 3D이미지는 기본으로 제작해야합니다.
사항에 맞게 공사기간과 공정으로 비용이 산출되어 꼭 꼼꼼히 따져보셔야 합니다.






지금까지 수원 광교에 위치한 25평 영어 수학 학원인테리어 공사 진행사진들을 확인하셨는데요.
학원 리모델링이나 신규 공사비용이 궁금하시면 아래 견적산출 프로그램으로 견적받아보셨으면 합니다.
http://www.cubedesign.co.kr/bbs/content.php?co_id=quote_01
사무실 평수 선택 | 큐브디자인
사무실 평수 선택 일상에 필요한 모든 것들을 연결해주는 새로운 연결, 더 나은 세상
www.cubedesign.co.kr

'수원인테리어' 카테고리의 다른 글
| 수원 사무실 유리칸막이 리모델링 인테리어공사 (0) | 2022.08.26 |
|---|---|
| 광교 우미뉴브 30평 사무실칸막이 인테리어 공사 (0) | 2022.08.26 |
| 광교 효성해링턴타워 20평 사무실 인테리어 (0) | 2022.08.26 |
| 광교 40평 사무실인테리어 SK뷰레이크타워 인테리어 디자인 전문업체 (0) | 2022.08.22 |
| 영통 50평 에이스 하이엔드타워 관공서 사무실인테리어 큐브디자인 (0) | 2022.08.22 |
댓글