안산 100평 공장 창고인테리어
| ㆍ안산 100평 창고 사무실리모델링 정보 |
|
PROJECT TYPE 사무실리모델링
WORK SCOPE 벽체공사, 목공사, 금속공사, 도배, 필름, 전기, 타일, 설비, 디자인 외 AREA 100py |
▼ 공장리모델링 인테리어 완료사진 ▼


▲ 옆동으로 새로 리모델링이 완료된 대표실

▲ 회의실 및 직원분들 휴게실로 쓰여지게될공간 / 공사 전 사진은 아래사진참고

▲ 직원분들이 활용하게될 공장사무동

▲ 연구실로 쓰여지게될예정으로 가벽으로 마감처리
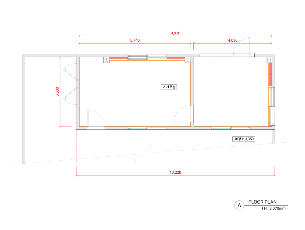
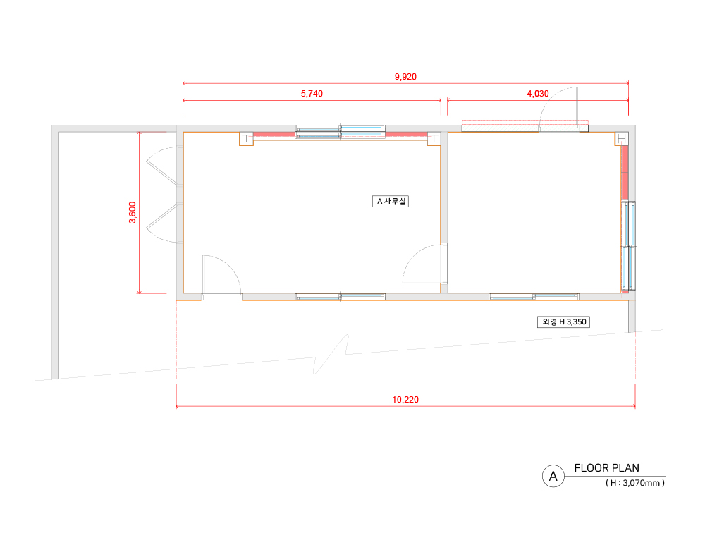
▼ 안산 사무실리모델링 도면 ▼



▼ 100평 공장창고 리모델링 공사전/후 사진 ▼


▲ 외관모습 기본 내장제 샌드위치판넬로 시공되어있는곳을 목공사로 모두 덮어 도배 마감 되었습니다.


▲ 기존 텅빈공간으로 활용했던 휴게실을 고급스럽고 깔끔한 대표실로 리모델링


▲ 샌드위치판넬 양개도어와 각관재를 철거후 완료된 연구동모습


▲ 외장판넬을 잡아주는 X벤더와 기둥면을 깔끔하게 인테리어마감


▲ 공장동에 있던 창고 미닫이도어를 철거후 외장판넬마감과 철문으로 양쪽 교체작업


▲ 창부분도 같은 PVC창과 두깨를 맞춰 공사완료


▲ 창고에서 본모습 오른쪽 세탁실과 창으로 변경완료모습


▲ 기존 화장실 파티션과 변기철거후 샤워실로 리모델링


▲ 같은 그레이 외장자재로 미닫이도어 철거부분을 금속유리칸막이로 완성 휴게실모습.
#공장인테리어, #창고인테리어, #공장리모델링, #리모델링비용, #사무실리모델링, #100평인테리어, 안산사무실인테리어 #큐브디자인
안산 공장, 창고 사무실리모델링 전문업체 큐브디자인 문의 031-321-1315 / 010-4444-0987
▼ 큐브디자인 공사완료사진 ▼



▲ 복층부분에 지게차로 짐을 이동할수 있게 안전바 설치














▲ 완성된 탕비공간과 세탁실



공장 창고 사무실리모델링전문업체 큐브디자인에서는
깔끔한 마감 및 커스텀과 AS까지 확실하게 하고있습니다.
안산사무실인테리어, 100평 사무실인테리어 견적문의는
아래의 연락처나 홈페이지를 방문하여 주시길 바랍니다!
031-321-1315 ( 유선전화문의 )
010-4444-0987 ( 문자, 카카오톡 견적문의 )
안산리모델링업체 관련된 정보는 아래의 사이트에서도 더 많은 사진을 보실 수 있습니다.

'리모델링공사' 카테고리의 다른 글
| 동탄 sk레이크원 사무실 인테리어 디자인 전문업체 (0) | 2023.01.06 |
|---|---|
| 수원 지식산업센터 95평 사무실 인테리어 공사현장 (0) | 2022.11.29 |
| 안양 지식산업센터 칸막이 및 인테리어현장 (0) | 2022.09.13 |
| 경기 실내 상업공간 리모델링 인테리어 (0) | 2022.09.05 |
| 수원, 동탄, 화성, 용인 지식산업센터 사무실리모델링 인테리어 전문기업 (0) | 2022.09.05 |
댓글