용인 소호사무실 인테리어공사 현장
안녕하세요!
수원 동탄 광교 용인 상업공간 및 사무실인테리어 전문기업
큐브디자인 인테리어그룹 입니다.
인테리어 공사완료된 현장을
소개해 드리겠습니다.
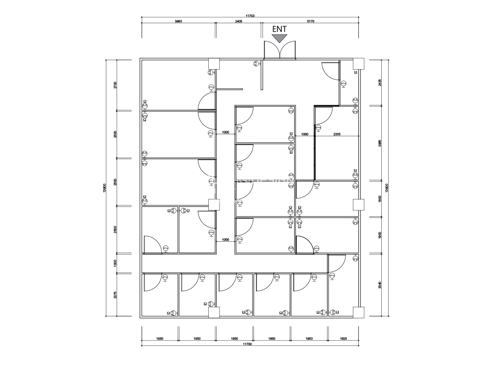
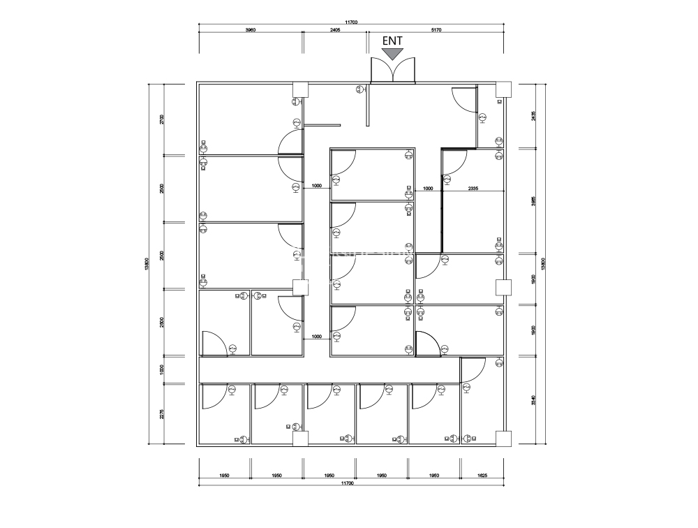
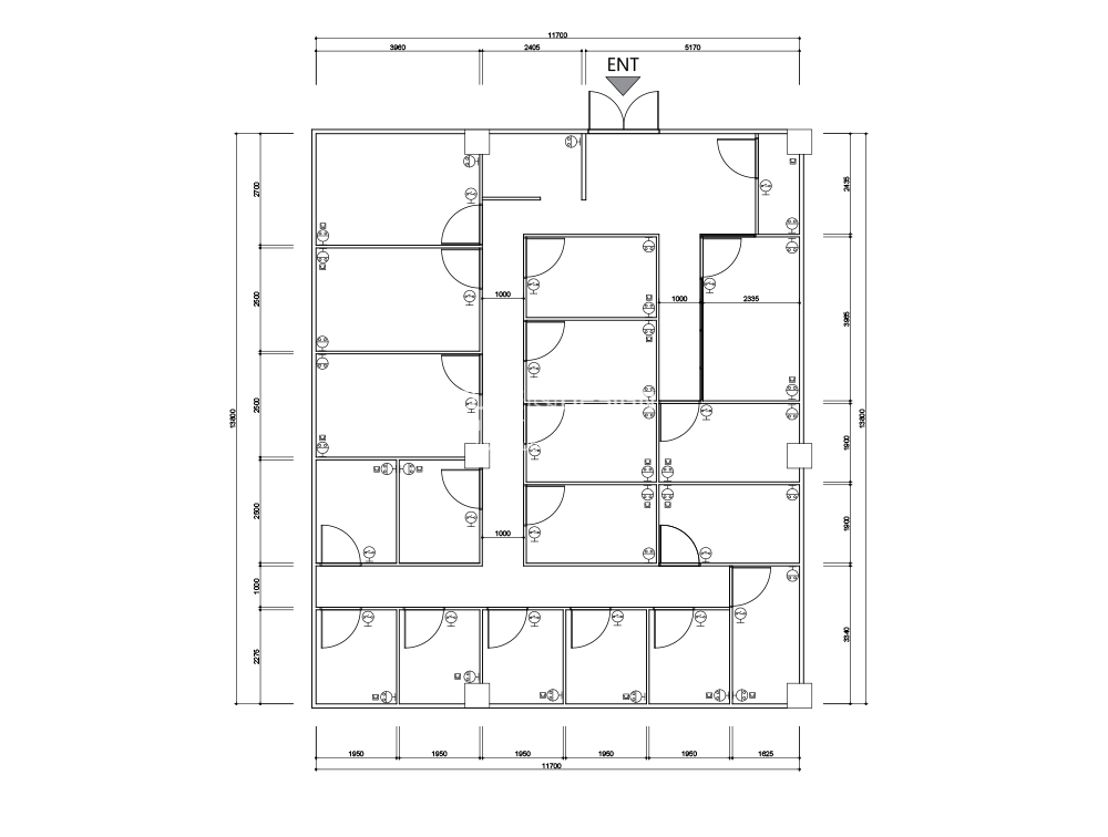
용인 강남대 앞에 위치한 소호사무실 인테리어를 진행하였습니다.
벽이 많아 비교적 저렴한 칸막이 판넬로 요청주셨는데요
현장도 깔끔하고 마무리도 잘 나와주었습니다.

입구 아트월뒤 휴식을 할수있는 라운지부분입니다.

문은 소방법에 위배되지 않도록 화재시 탈출이 가능한
창이달려있는 문으로 시공하였습니다.

회의실 유리부분 알루미늄 블라인드와
레이저커팅시트를 활용하여 포인트를 주었습니다.

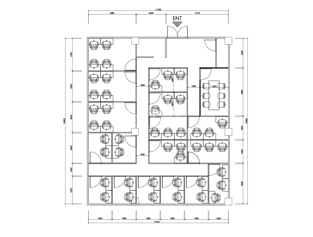
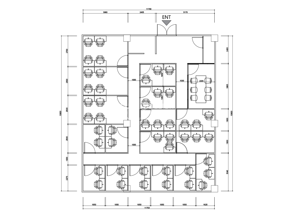
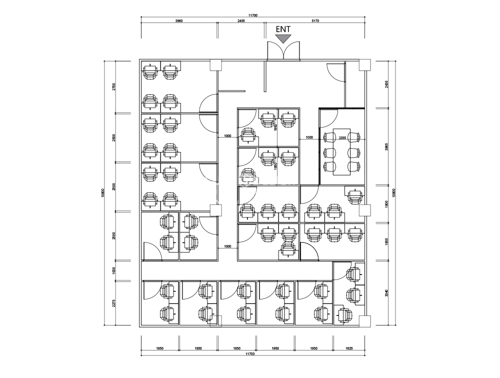
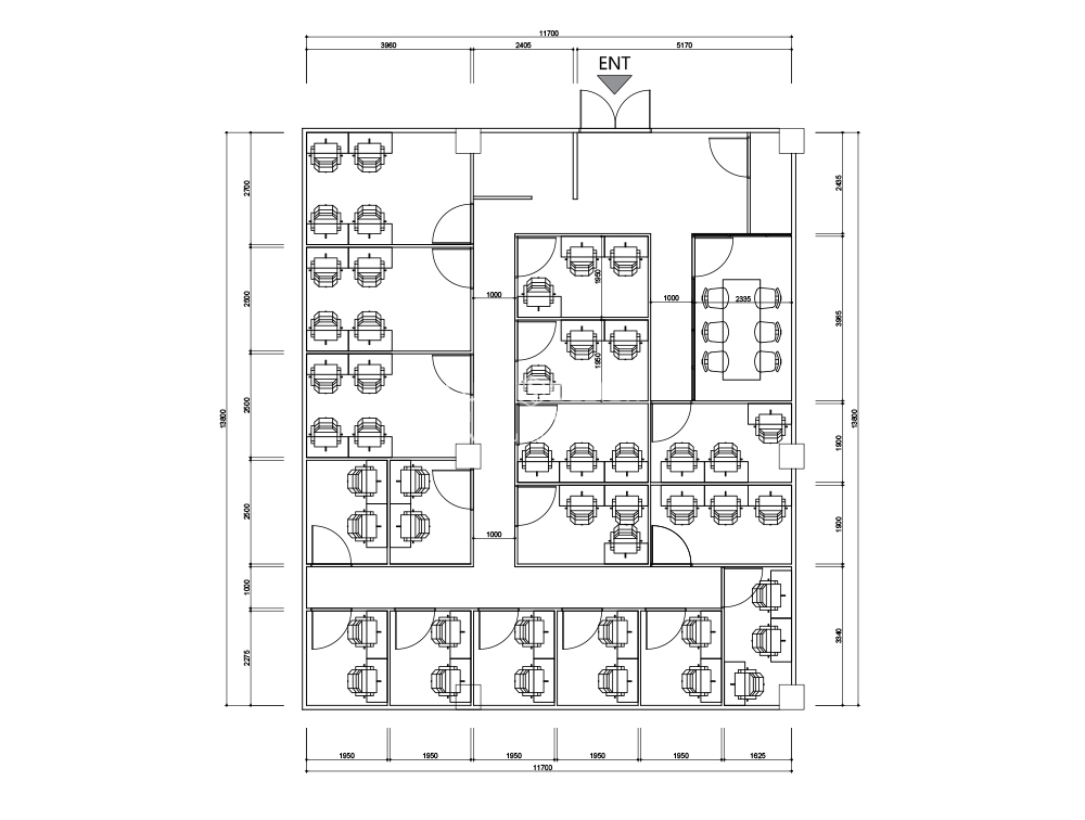
공사를 시작하기전 도면에 책상 및 집기를 배치하여 한번더 확인해봅니다.


















수원 동탄 광교 용인 상업공간 및 사무실인테리어 전문기업 큐브디자인에서는
깔끔한 마감 및 커스텀과 AS까지 확실하게 하고있습니다.
광교 사무실인테리어 견적문의는
아래의 연락처나 홈페이지를 방문하여 주시길 바랍니다!
031-321-1315 ( 유선전화문의 )
010-4444-0987 ( 문자, 카카오톡 견적문의 )
아래의 사이트에서도 더 많은 사진을 보실 수 있습니다.
http://www.cubedesign.co.kr
큐브디자인
수원 영통구 위치 큐브디자인 본점, 동탄 광교 용인 안양 성남 사무실 지식산업센터 공장 상가 인테리어 디자인 전문업체
www.cubedesign.co.kr
'용인인테리어' 카테고리의 다른 글
| 용인인테리어업체, 나만의 업무공간 활용 (0) | 2023.02.14 |
|---|---|
| 용인 수원 화성 벽체 및 보수공사 (0) | 2022.11.29 |
| 용인 상가 30평 사무실인테리어 (0) | 2022.09.01 |
| 용인 중학교 학급증설에 따른 일반교실 전환 리모델링공사 (0) | 2022.08.26 |
| 용인 중학교 체육관 리모델링 인테리어공사 (0) | 2022.08.26 |
댓글