용인 20평 사무실인테리어 큐브디자인

안녕하세요, 큐브디자인입니다!
용인에 위치한 사무실인테리어 아이소입니다.
래핑유리칸막이와 아트월 등 공사가 진행될 예정입니다!안녕하세요 공간을 디자인하다 수원인테리어업체
큐브디자인입니다.
오늘은 수원에 위치한 20평 소형 사무실인테리어
시공사례를 소개해 드릴려고하는데요.
현장도 수원점 지역과 가깝고 추후 AS를 고려하여
가까운 큐브디자인쪽으로 선택을 해주셨어요.
이제 공간별로 변화된 모습을 소개해 드리겠습니다.


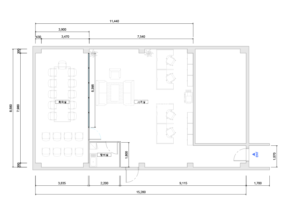
사무실 내부모습 :)


사무공간에는 4명의 근무자와 간단하게 상담할 수 있는
5인 쇼파구성으로 공사가 완료되었습니다.
사무실구조가 정사각으로 되어있어 공간을 최소한으로 하기위해
일자형구조로 구성되었습니다.


사무실과 회의실 가벽에는 저렴한 금액대의 유리칸막이로 시공되었습니다.
사용목적에 따라 대표실과 임원실이 없는관계로
큰 대형 회의실로 탄생한 소형사무실인테리어공사였습니다.


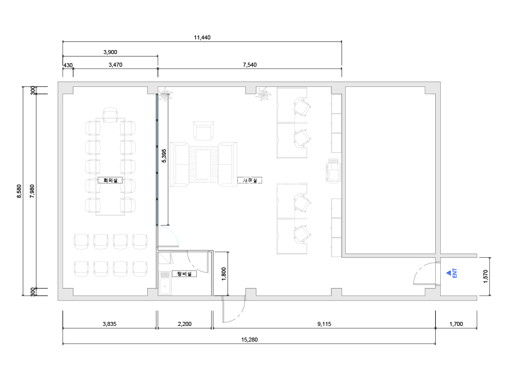
회의실 내부모습입니다.
여러명이서 상담할수 있는 구조입니다.


제안드렸던 아이소와 탕비실



공사전 목재로 되어있는구조로 분양을 받아 답답한 입구로 되어있었는데요.
목공사를 통하여 깔끔한 외부 아트월과 강화도어로 마감된 수원인테리어입니다.



지금까지 큐브디자인 수원점에서 진행한
수원20평 소형 사무실인테리어모습을 공간별로 확인하셨는데요.
더 다양한 현장을 보고싶으시면 아래의 링크를 통하여 확인하실 수 있습니다.
http://www.cubedesign.co.kr/interior_portfolio

'용인인테리어' 카테고리의 다른 글
| 용인 기흥 ICT 밸리 SKV1 기업부설연구소 사무실인테리어 (0) | 2022.08.22 |
|---|---|
| 용인 로스팅 카페인테리어 (0) | 2022.08.22 |
| 용인 20평 빌라 리모델링 아파트인테리어 (0) | 2022.08.19 |
| 용인 지식산업센터 흥덕it밸리 인테리어공사 (0) | 2022.08.19 |
| 용인 유리칸막이 디자인 안개시트공사 (0) | 2022.08.16 |
댓글