수원인테리어
수원 15평 변호사 사무실인테리어
수원짱
2022. 8. 16. 11:45

ㅣ 변호사사무실인테리어
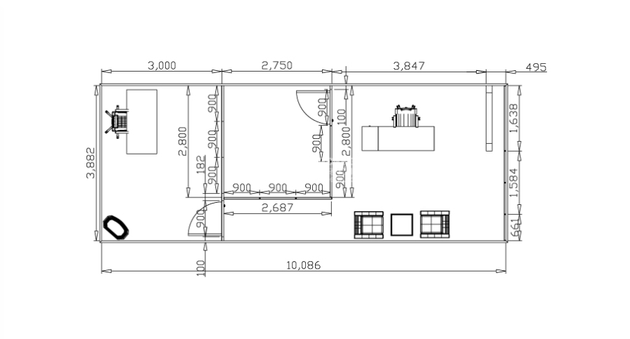
경기도 수원시 영동구 원천동 사무실
평형 15평
공사명 사무실인테리어 / 칸막이공사
공사기간 3일
범위 칸막이공사(유리), 도배, 바닥, 전기, 필름, 이미지월
수원시 영통에 위치한 새로건설된 내부인테리어를 진행하게 되었습니다.
약 12평이며 10m가량 길게 나온 구조로 설계 컨설팅을 요청해주셨습니다.
래핑(랩핑)칸막이 유리 AG타입으로 유리와 결합하여 완성되었습니다.
큐브디자인 변호사법률사무실 시공완료사진









사무실인테리어 공사전후 비교


큐브디자인 유리 래핑칸막이 공사 & 사무실인테리어 시공사진

유리는 8T 강화유리 5조와 5T 컬러유리화이트모습입니다.















블랙&화이트판넬 조합은 사무실인테리어를 더욱 화려한 모습으로 변화되었습니다. 따로 필름공정이 필요하지 않아 비용을 더 절감시킬 수 있습니다.














3일간 진행된 수원시 영통구 원천동 법률변호사사무실 인테리어가 마무리 되었습니다.
진행과정을 꼼꼼하게 체크하며, 사진전송해 드렸으며 현장에서 발생할수 있는 사항들을 체크하여
협의 관리감독하였습니다.
사무실인테리어 관련 컨설팅, 설계 및 문의는 큐브디자인홈페이지나 아래 연락처로 주시면
상세하게 상담해 드리겠습니다.
더욱더 노력하는 큐브인테리어가 되겠습니다. 감사합니다.