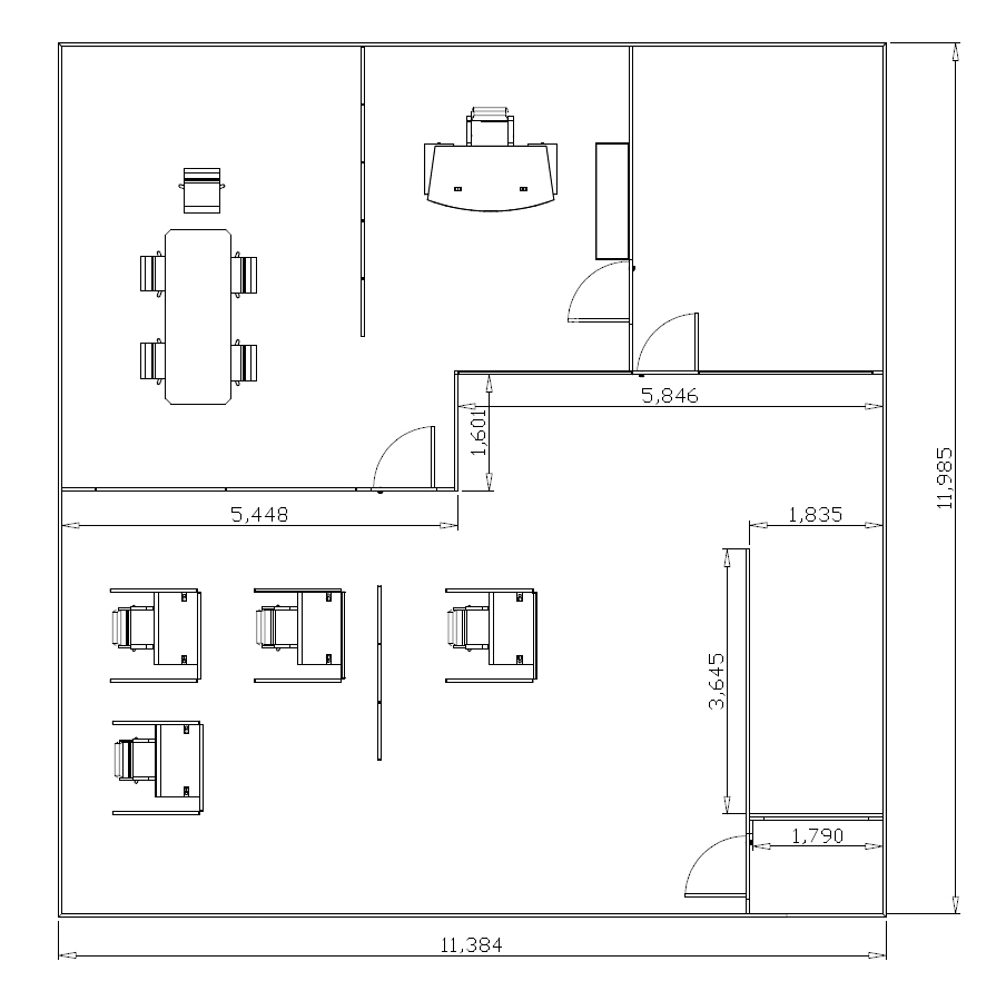
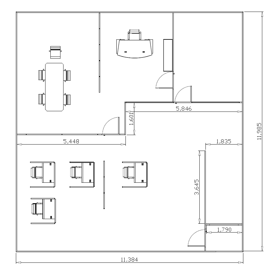
수원 40평 사무실 인테리어 리모델링 확장공사

ㅣ 제약회사 사무실 인테리어 및 확장 리모델링
경기도 수원시 영동구 영통동
평형 40평
공사명 사무실인테리어 리모델링 확장공사
범위 철거, 칸막이공사, 도배, 바닥, 전기, 페인트, 네트워크, 이미지월
수원시 영통 경희대 인근 청명타운텔 사무실인테리어 및 확장 리모델링공사를 진행하였습니다.
기존 25평형에서 옆사무실을 인수하셔서 총 40평규모의 인테리어 공사를 하였으며,
칸막이공사에서도 최소한 살릴수 있는것들은 살리며 추가로 필요한 공간들만큼만 나눠 실용적인 공간으로 재탄생하게 되었습니다.
사무실인테리어 큐브디자인 공사완료사진



























큐브디자인 사무실인테리어 견적문의
영통구 제약회사 사무실인테리어 및 확장리모델링 공사가 3일만에 이상없이 완료되었습니다.
믿고 맡겨주신 회사 사장님외 직원분들께 깊은감사드리며, 좋은일만 가득하시길 바랍니다.
본공사와 관련하여 자세한 공사사진과 견적문의는 아래 홈페이지나 전화번호를 통해 가능합니다.
http://www.cubedesign.co.kr / TEL . 031-321-1315 큐브디자인
큐브디자인
수원 영통구 큐브디자인, 사무실인테리어,학원,상가,주거 인테리어 설계,시공,컨설팅,자재몰
www.cubedesign.co.kr
'수원인테리어' 카테고리의 다른 글
| 학원인테리어 체인점 이미지월 (0) | 2022.08.16 |
|---|---|
| 수원 15평 변호사 사무실인테리어 (0) | 2022.08.16 |
| 수원 50평 학원 인테리어 리모델링 (0) | 2022.08.16 |
| 수원 100평 무빙월 칸막이, 사무실 인테리어 원상복구공사 (0) | 2022.08.16 |
| 광교 20평 화이트톤 사무실인테리어 큐브디자인 (0) | 2022.08.16 |
댓글