수원 50평 학원 인테리어 리모델링

ㅣ 수학 학원 인테리어 리모델링, 경량칸막이공사
경기도 수원시 팔달구 인계동
평형 50평
공사명 학원인테리어 리모델링
범위 철거공사, 경량칸막이공사, 전기공사, 페인트공사, 천정공사, 바닥공사, 목공사
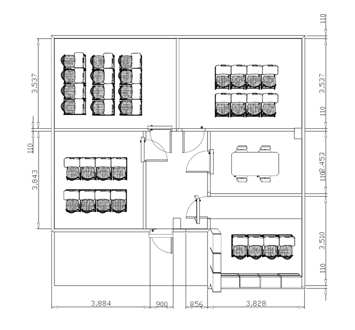
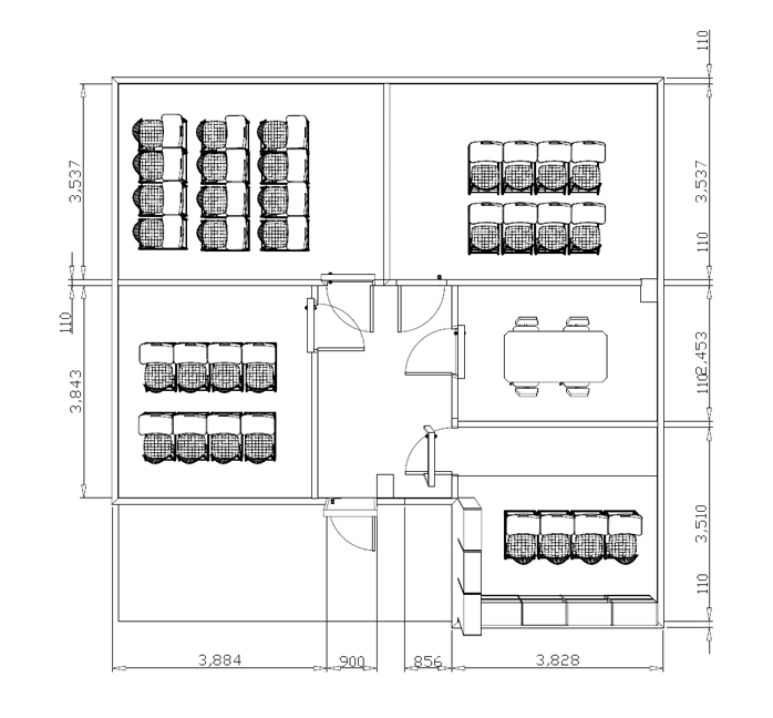
수원시 팔달구 인계동에 위치한 35평 수학 학원 리모델링 인테리어공사를 맡았습니다.
초기 문의사항은 교실1개소 추가, 칸막이공사요청에 신규문추가 및 기존 설치됬던 칸막이 1p 요청을 하였으며,
105mm 두께의 판넬을 맞춰 공사완료를 하였습니다.





























학원 리모델링 인테리어, 경량칸막이공사 시공을 완료해 드렸습니다.
모두 만족해 하셨으며 추가공사로 칠판도 모두 시공드렸습니다.
자세한 견적문의나 포토폴리오는 큐브디자인홈페이지에서 확인하실 수 있습니다.
'수원인테리어' 카테고리의 다른 글
| 수원 15평 변호사 사무실인테리어 (0) | 2022.08.16 |
|---|---|
| 수원 40평 사무실 인테리어 리모델링 확장공사 (0) | 2022.08.16 |
| 수원 100평 무빙월 칸막이, 사무실 인테리어 원상복구공사 (0) | 2022.08.16 |
| 광교 20평 화이트톤 사무실인테리어 큐브디자인 (0) | 2022.08.16 |
| 20평 지식산업센터 원희캐슬 사무실 칸막이 기흥서천 큐브디자인 (0) | 2022.08.16 |
댓글